Предупреждение Для обеспечения высокого уровня обслуживания на этом сайте используются куки (cookies). Продолжая его использование, вы соглашаетесь с тем, что куки (cookies) будут сохраняться на вашем компьютере: Принять

Фильтр сетчатый фланцевый из чугуна ФСФч Ду50 Ру16 Benarmo 5010 с пробкой

BEN5010-050
Фильтр Benarmo, сетчатый, DN 50 (2"), 1,6 МПа, L230мм, Т= до +150°С, фланцевый, Китай Benarmo
5 103.00 
Задать вопрос
Вес: 7.490 кг
В наличии
+

Фильтр сетчатый фланцевый из чугуна ФСФч Benarmo 5010 Ду50 Ру16

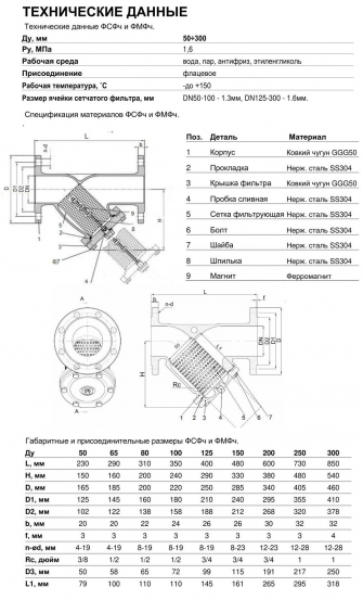
предназначен для улавливания механических частиц и загрязнений в воде, паре,

антифризе и других неагрессивных материалу фильтра жидкостях и предотвращает их попадание в оборудование, установленное в системе, таких как насосы, регулирующая арматура, манометры, счетчики воды и другие.

Фильтр ФСФч Benarmo 5010 DN50 PN16 задерживает загрязнения, размеры которых превышают размеры ячеек сетки.

Извлечение отфильтрованных частиц выполняется путем выкручивания пробки фильтра и

последующей очистки фильтрующего элемента (сетки).

Фильтр ФСФч-50 должен устанавливаться в доступном для технического осмотра месте, пробкой вниз. Направление стрелки на корпусе должно совпадать с направлением потока среды

Наименование, марка:
Фильтр Benarmo
Конструкция:
сетчатый
Диаметр условного прохода, мм:
DN 50 (2")
Максимальное рабочее давление:
1,6 МПа
Материал (основной):
чугун высокопрочный GGG50 / EN-GJS-500
Материал сетки:
сталь нержавеющая 1.4301 - AISI 304
Магнитная вставка (наличие):
нет
Монтажная длина:
L230мм
Температура рабочей среды:
Т= до +150°С
Размер ячейки сетки:
1,3 мм
Присоединение:
фланцевый
Производитель, Бренд:
Китай Benarmo
Масса (вес) :
7,49 кг

Декларация о соответствии фильтры Benarmo до 12.09.2028г (Декларация_о_соответствии_фильтры_Benarmo_до_12.09.2028г.pdf, 357 Kb) [Скачать]

За ту же цену!

FAF 2100 Ду 25 Ру16
2100025
5 331.00 
FAF 2250 Ду 25 Ру16
2250025
5 346.00 
FAF 2330 NBR Ду 65
2330065
5 346.00